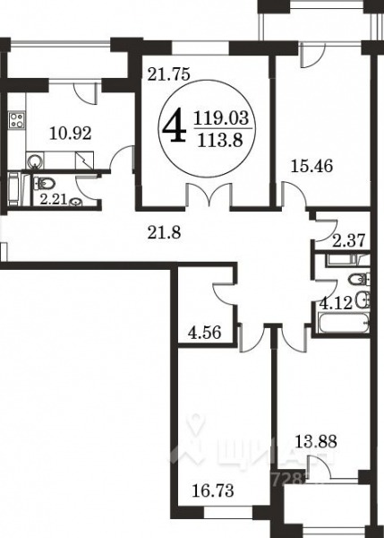
4-комн. квартира, 113,8 м²

 

4-комн. квартира, 113,8 м²в ЖК «ИзМайЛовО», Корп. 1, сдача в 3 кв. 2020

Москва, ВАО, р-н Измайлово, Верхняя Первомайская ул.

  • Измайловская ⋅ 16 мин. пешком
  • Первомайская ⋅ 17 мин. пешком

    Новогодняя акция: 10% скидка

    4-комн. квартира, 113,8 м²

    Общая

    113,8 м²

    Жилая

    67,8 м²

    Кухня

    10,9 м²

    Этаж

    5 из 19

    Срок сдачи

    3 кв. 2020

    Продается 4-комнатная квартира, в строящемся доме (Корп. 1), срок сдачи: III-кв. 2020, общей площадью 113.80 кв.м., на 5 этаже. Современный ЖК «ИзМайЛовО», возводимый по индивидуальному проекту, воплощает в себе все основные преимущества бизнес-класса. Два монолитных корпуса переменной этажности (19 и 20 этажей) эффектно выделяются на фоне традиционной застройки благодаря светлому фасаду, облицованному натуральным камнем двух тонов.

    Современные инженерные коммуникации включают пассажирские и грузопассажирские лифты, объединяющие корпуса с двухуровневым подземным паркингом на 480 машиномест. На первых этажах разместятся физкультурно-оздоровительный комплекс, спа-центр, ресторан, магазин и аптека. На собственной благоустроенной территории будут расположены детские площадки и зоны отдыха. Концепция ЖК включает строительство детского сада.

    Окружающий район обладает развитой инфраструктурой. В районе Измайлово находится 21 детский сад, 12 школ, музыкальные школы им. С. В. Рахманинова и Р. К. Щедрина, Российский государственный университет физической культуры, спорта, молодежи и туризма, а также Российская международная академия туризма, физический и химический корпуса Московской медицинской академии им. И. М. Сеченова. Рядом находятся такие парки, как Серебряно-Виноградный пруд и живописный Сиреневый сад, Измайловский парк.

    Современный жилой комплекс бизнес-класса, расположенный в комфортном месте восточного района Москвы.
    Застройка предполагает два жилых двухсекционных дома и дошкольное образовательное учреждение (детский сад).
    Современная классическая архитектура.
    Эргономичные планировочные решения квартир для любой семьи.
    Благоустроенная придомовая территория с детской и спортивной площадками.
    Детский сад в рамках концепции.
    Коммерческая инфраструктура комплекса: физкультурно-оздоровительный центр, магазин, аптека, ресторан и СПА.
    Подземный паркинг. Спуститься в подземный паркинг с жилых этажей можно на лифте.
    Кладовые помещения для жильцов.
    Стильно оформленные места общег

    Добавить комментарий